• Home
  • Work
  • Teaching
  • Services
  • About
  • Contact

MOV.E

  • Home
  • Work
  • Teaching
  • Services
  • About
  • Contact

Willardshire Residence

Work performed under Jay Braymiller Architect

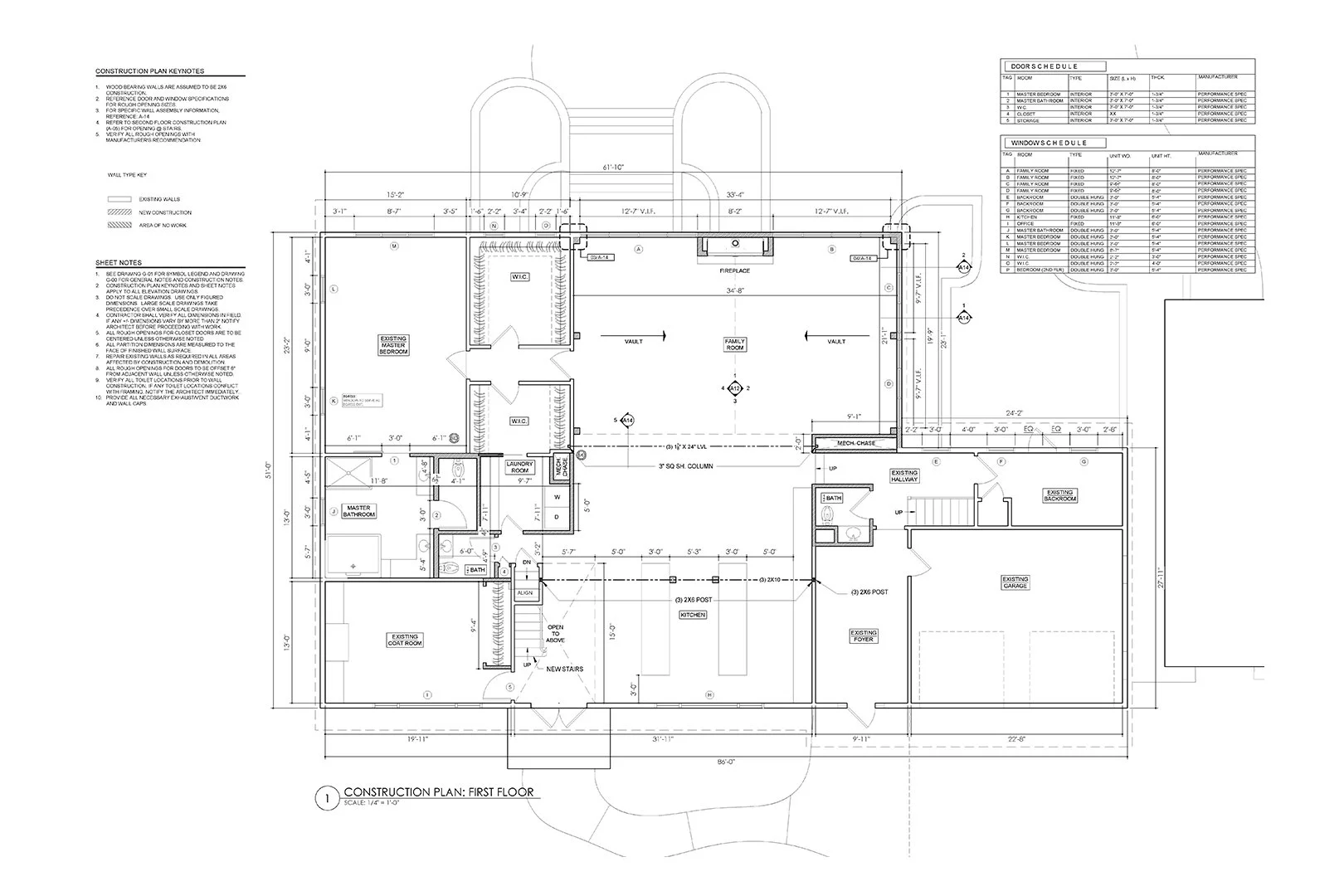
Willardshire Residence is a residential renovation and addition that reconfigures an existing single-family home to improve spatial clarity, daylight access, and connections between interior living spaces and the surrounding landscape. The project focuses on transforming the home’s primary gathering areas while respecting the scale, structure, and character of the original house.

A new double-height family room addition anchors the design, introducing a vaulted ceiling, large-format glazing, and a central stone fireplace that acts as both a structural and visual focal point. This space creates a clear hierarchy within the home, supporting daily living, gathering, and seasonal use while drawing natural light deep into the interior. The addition is carefully integrated into the existing rooflines and framing systems to minimize disruption and maintain continuity with the original structure.

Interior renovations reorganize circulation and adjacencies to improve flow between the kitchen, family room, and adjacent spaces, while targeted structural interventions allow for larger openings and expanded sightlines. Material selections emphasize durability and warmth, pairing natural wood finishes with stone, glazing, and restrained detailing to create a cohesive interior environment.

The project balances new construction with selective preservation, using detailed drawings and coordinated construction documentation to guide structural modifications, envelope upgrades, and interior finishes. The result is a renovated residence that enhances spatial experience, improves functionality, and supports long-term use while remaining grounded in the logic of the existing home.

LivingRoomRender.jpg
LivingRoomRender_MockUp.jpg
Drawing_FirstFloor.jpg
Drawing_RoofPlan.jpg
Drawing_Elevation_03.jpg
SunroomDrawing.jpg