• HOME
  • Intro
  • Work
  • Teaching
  • About
  • Contact

mov.e

  • HOME
  • Intro
  • Work
  • Teaching
  • About
  • Contact

Masonry Systems: Seismic FEA

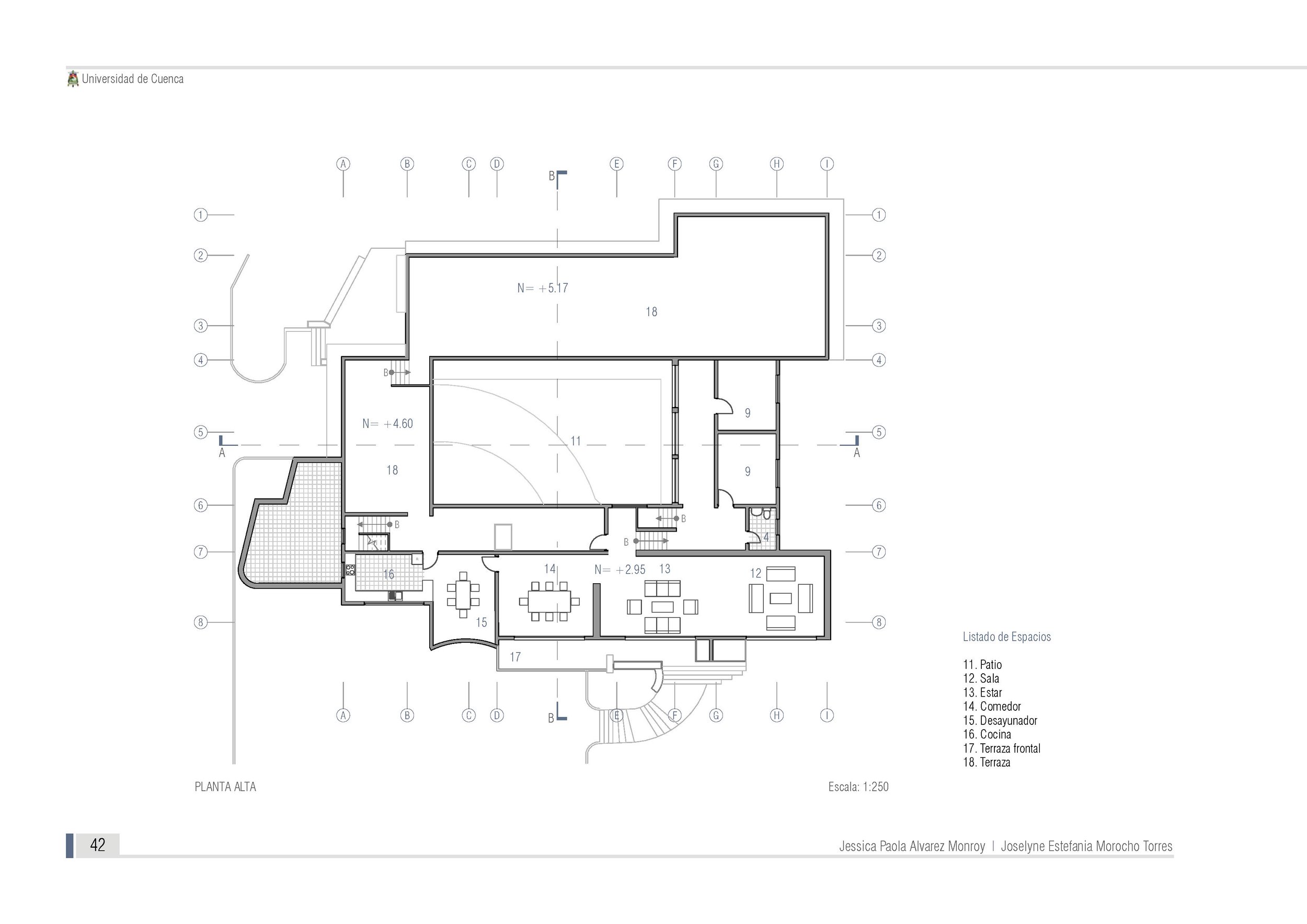
Cuenca is the third most important city in Ecuador, it is located in a high seismic hazard zone; although the Ecuadorian Construction Standard, known as the Norma Ecuatoriana de la Construcción (NEC-SE-DS, 2015), establishes requirements for a correct earthquake resistant design, compliance with these is not strictly regulated. There is limited information on the constructive and architectural quality of existing buildings, which is why the introduction of seismic studies in different city sectors is necessary.

This research analyzes architectural and seismic characteristics of three buildings in the area of El Ejido. The selected buildings meet several criteria, in particular: isolated implantation, brick walls and a height of up to two floors. For the analysis of the architectural configuration the following variables were considered: inside corners, continuity of openings, long-wide relationship, slab openings and geometric regularity in facades. In the seismic analysis, mathematical models are developed. These were later subjected to a modal and spectral analysis obtaining results such as: periods, vibration modes, mass displacements and design spectra. Once the previously described analysis had been carried out, it was fundamental to verify that the floor drifts of the analyzed buildings did not exceed the maximum value established in the Ecuadorian Construction Standard in the Seismic Danger chapter: earthquake resistant design (NEC-SE-DS). Finally, the results from the architectonic and seismic analysis are compared.

Trabajo de Titulacion_Page_01.jpg
Trabajo de Titulacion_Page_02.jpg
Trabajo de Titulacion_Page_03.jpg
Trabajo de Titulacion_Page_04.jpg
Trabajo de Titulacion_Page_08.jpg
Trabajo de Titulacion_Page_07.jpg
Trabajo de Titulacion_Page_11.jpg
Trabajo de Titulacion_Page_10.jpg
Trabajo de Titulacion_Page_13.jpg
Trabajo de Titulacion_Page_12.jpg
Trabajo de Titulacion_Page_14.jpg
Trabajo de Titulacion_Page_09.jpg
Trabajo de Titulacion_Page_30.jpg
Trabajo de Titulacion_Page_27.jpg
Trabajo de Titulacion_Page_05.jpg
Trabajo de Titulacion_Page_28.jpg
Trabajo de Titulacion_Page_06.jpg
Trabajo de Titulacion_Page_37.jpg